В Ужгороді відбудеться громадське обговорення кількох проектів детальних планів територій

Відповідно до розпорядження міського голови від 22.05.2018 № 222 «Про проведення громадських слухань», дотримуючись статті 21 Закону України «Про регулювання містобудівної діяльності», керуючись постановою Кабінету Міністрів України від 25.05.2011 року № 555, з метою врахування громадських інтересів та визначення планувальної організації та розвитку територій м. Ужгород з 23.05.2018 року по 21.06.2018 року будуть проводитися громадські слухання по містобудівній документації – проектах детальних планів територій м. Ужгород, а саме:
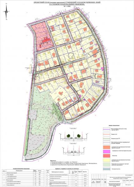
Детальний план території, обмеженої вулицями Робочою, Руською, Мукачівською та Івана Анкудінова.
Детальний план території, обмеженої вулицями Північною, Теодора Ромжі та Акацій (за кошти інвестора).
Детальніше про планування територій і куди подавати пропозиції – на офіційному сайті Ужгородської міської ради за посиланням http://rada-uzhgorod.gov.ua/provodyatsya-gromadski-sluhann…/


Відділ інформаційної роботи Ужгородської міської ради
До теми
- В Ужгороді сьогодні попрощалися із 48-річним сержантом Василем Голінкою
- Завтра в Ужгороді попрощаються із загиблим захисником Сергієм Козаченком
- В Ужгороді завтра прощатимуться із полеглим Героєм
- Що буде на Aqua Fest в Ужгороді: повна програма інтерактивної наукової екоподії
- Увага водіям: обмеження руху в Ужгороді на вулиці Академіка Шпеника 21 березня
- Ужгородський скансен запрошує на тематичну екскурсію з елементами реконструкції «Свято першої борозни»
- Будівлю Єврейської синагоги з села Великі Ком'яти перевезуть у скансен в Ужгороді
- В Ужгороді сьогодні двом ветеранам передали безкоштовні квартири
- В Ужгороді сьогодні попрощалися із 56-річним підполковником Олександром Сахнюком
- В Ужгороді сьогодні попрощалися із 51-річним солдатом Михайлом Швандою
- Завтра, 11 березня, в Ужгороді попрощаються із військовим Олександром Сахнюком
- «Борітеся – поборете!» – у центрі Ужгорода відбувся поетичний марафон «Шевченкові читання. Мовою Кобзаря»
- В Ужгороді сьогодні попрощалися із 56-річним старшим солдатом Андрієм Жабським
- Завтра, 10 березня, в Ужгороді попрощаються із захисником Михайлом Швандою
- В Ужгороді відбулися урочистості до 212-ї річниці з дня народження Тараса Шевченка
- Завтра Ужгород прощатиметься із полеглим Героєм
- Стартував міський конкурс «Ужгород очима школярів»
- Обласний музей народної архітектури та побуту проведе виставку «Жінка в традиційній культурі Закарпаття»
- Ужгород знову в жалобі: в останню земну дорогу провели 54-річного захисника Бориса Тараненка
- Завтра в Ужгороді прощатимуться із полеглим Героєм

До цієї новини немає коментарів